Three story hostel building floor plan details dwg file
Description
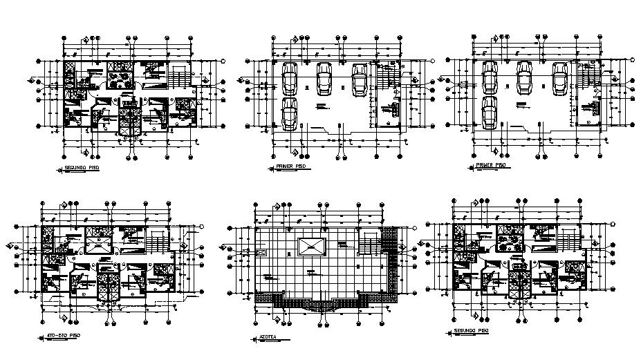
Three story hostel building floor plan details that includes a detailed view of reception area, waiting area, gym, waiting lounge, hostel offices, laundry room, warden, indoor stairs, sanitary facilities, indoor doors and windows, rooms and much more of hostel project.
Uploaded by:

