One family house facade and back sectional details dwg file
Description
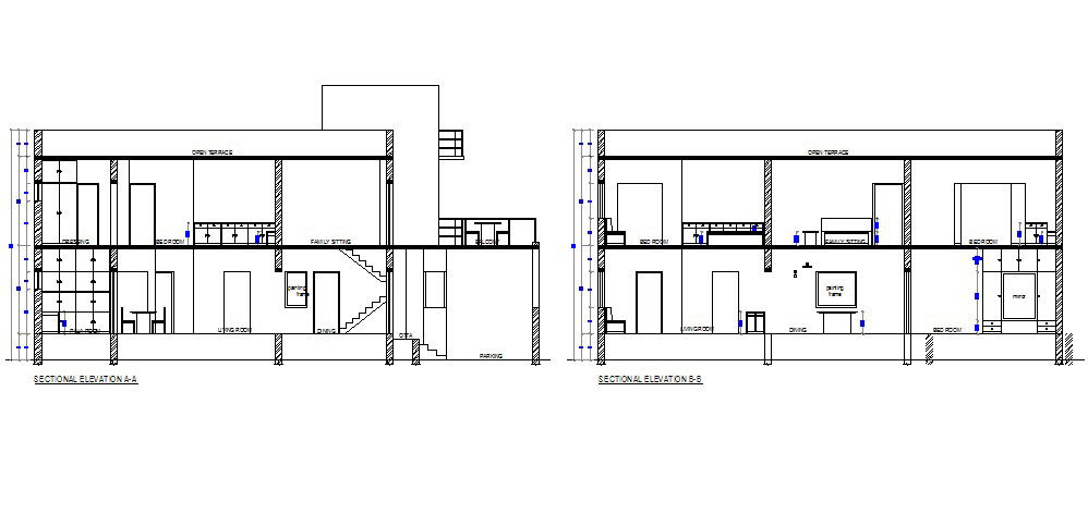
One family house facade and back sectional details that includes a detailed view of facade back and side elevations and section details with flooring view, doors and windows view, staircase sectional details, balcony view, wall sections and dimensions details, car parking floor, tree view, wall design and much more of sectional details.
Uploaded by:

