Higher study college building detailed architecture project dwg file
Description
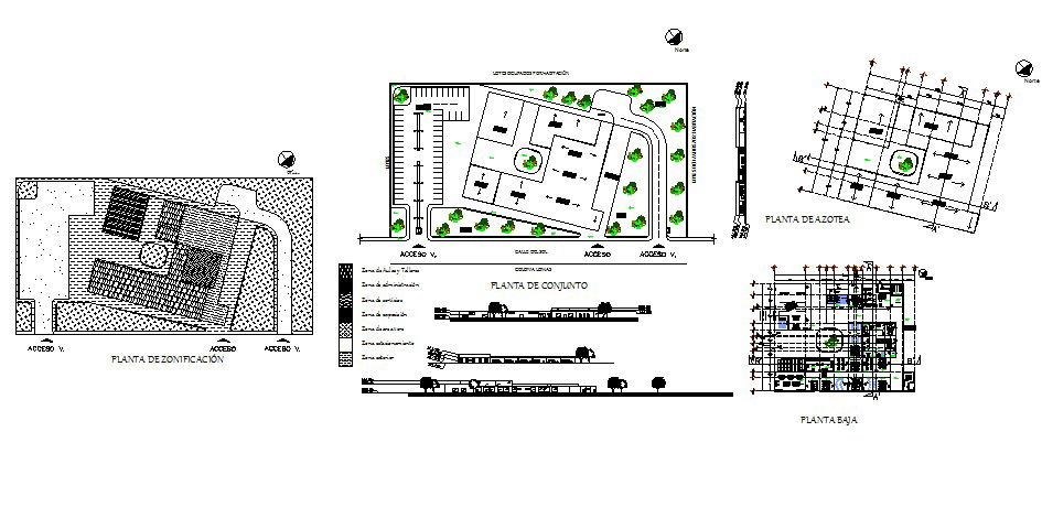
Higher study college building detailed architecture project that includes a detailed view of flooring view, doors and windows view, staircase view, balcony view, wall design, dimensions, roof or terrace view, car parking view with main entry gate, parking area for students and staff, classrooms, stream departments, library, laboratory, staff room, cultural hall, sanitary for staff, sanitary for students, canteen/cafeteria, sports ground, meeting room, cleaning department, admission office, clerk room, principal or head office and much more of college project.
Uploaded by:

