LOGIN
HOME
CATEGORIES
UPLOAD FILE
PRICING
HOUSE PLAN
ABOUT US
CONTACT US
House autocad plan, autocad house plans with dimensions
Home
Categories
Architecture
House Plan
House autocad plan, autocad house plans with dimensions
Uploaded by:
View Profile
View Profile
Description
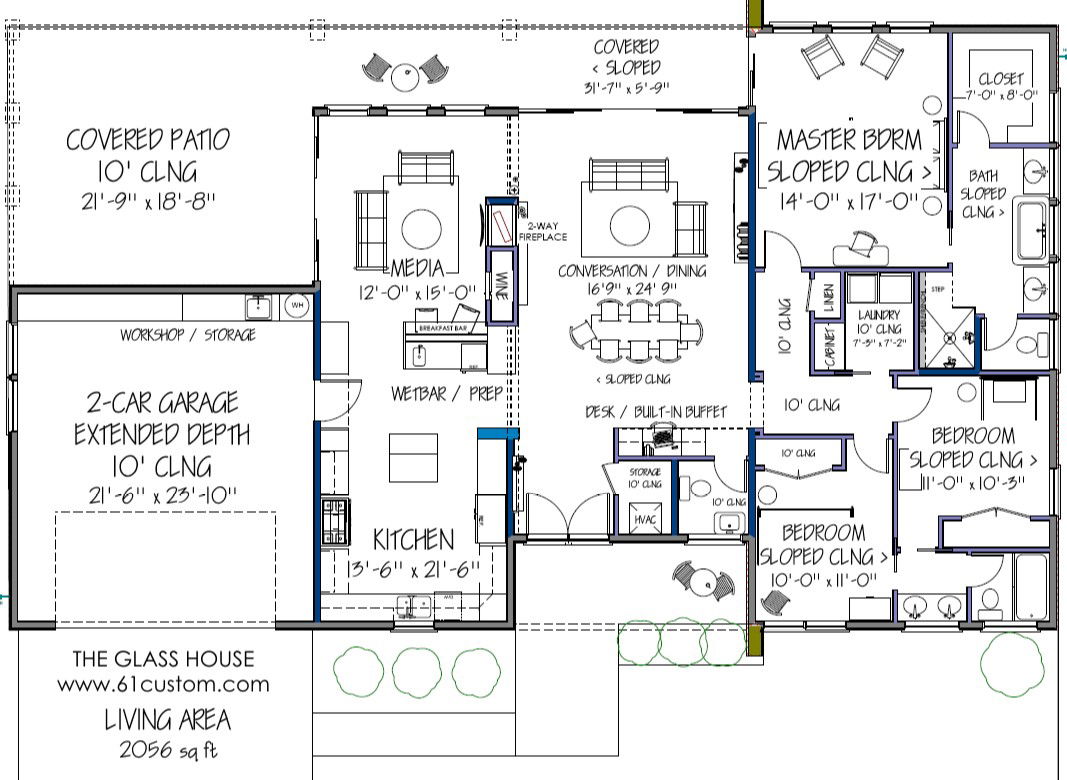
House Autocad plan, AutoCAD house plans with dimensions sections, working plan, elevations, and constructions detail of the house
File Type:
DWG
File Size:
342 KB
Category::
Architecture
Sub Category::
House Plan
type:
Gold
Uploaded by:
View Profile
Download
Add to libary
find Latest
Related
Files