Scour valve section and plan cad drawing details dwg file
Description
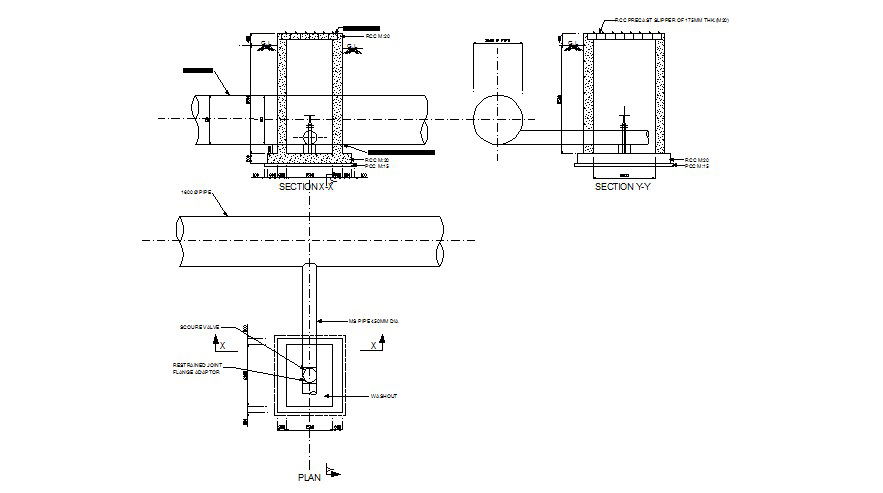
Scour valve section and plan cad drawing details that includes a detailed view of valve sectional details, plan details with colors details, size details, type details etc for multi purpose uses for cad projects.
File Type:
DWG
File Size:
38 KB
Category::
Dwg Cad Blocks
Sub Category::
Autocad Plumbing Fixture Blocks
type:
Gold
Uploaded by:

