One family house floor plan, cover plan and auto-cad details dwg file
Description
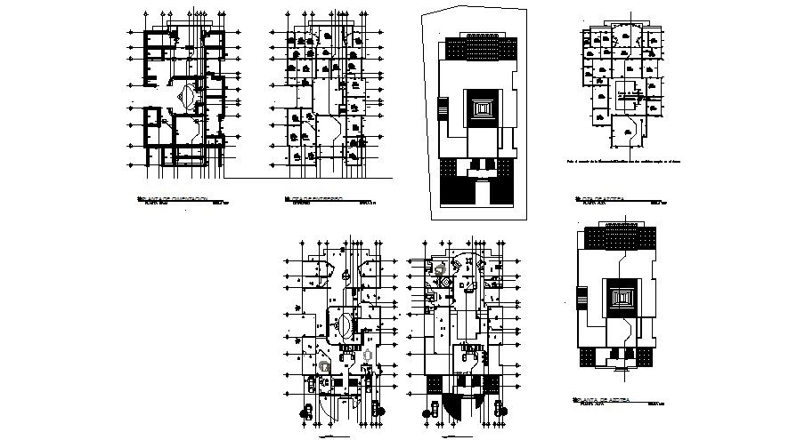
One family house floor plan, cover plan and auto-cad details that includes a detailed view of main entry house door, drawing room, living room, family hall, kitchen, dining area, indoor staircases, laundry area, balcony, bedroom, master bedroom, toilets and bathroom, indoor doors, furniture details and much more of house project.
Uploaded by:

