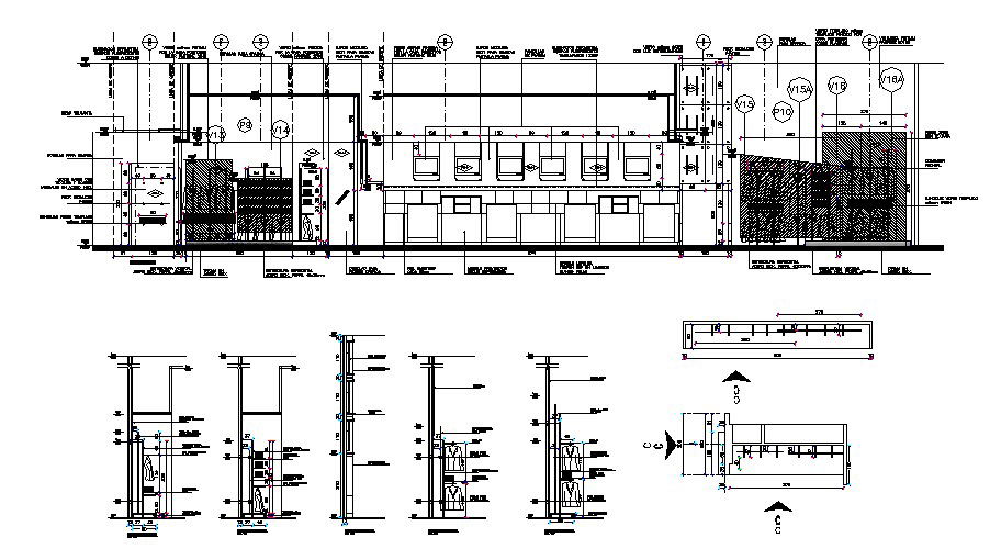
Shopping mall building main section and auto-cad details dwg file
Description
Shopping mall building main section and auto-cad details that includes a detailed view of flooring view, doors and windows view, staircase sectional details, balcony view, wall sections and dimensions details, car parking floor, tree view, wall design, shops and showroom details and much more of shopping mall details.
Uploaded by:

