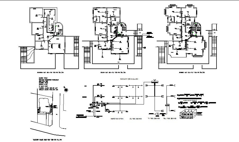
Electrical layout plan details of all floors of villa cad drawing details dwg file
Description
Electrical layout plan details of all floors of villa cad drawing details that includes a detailed view of main entry gate, kitchen, dining area, power layout details, lighting layout details, computation and schedule of loads, general notes and specifications, panel board details, riser diagram, convienence details, legends and electric equipment details, cable details, dimensions details and much more of electrical installation details.
Uploaded by:

