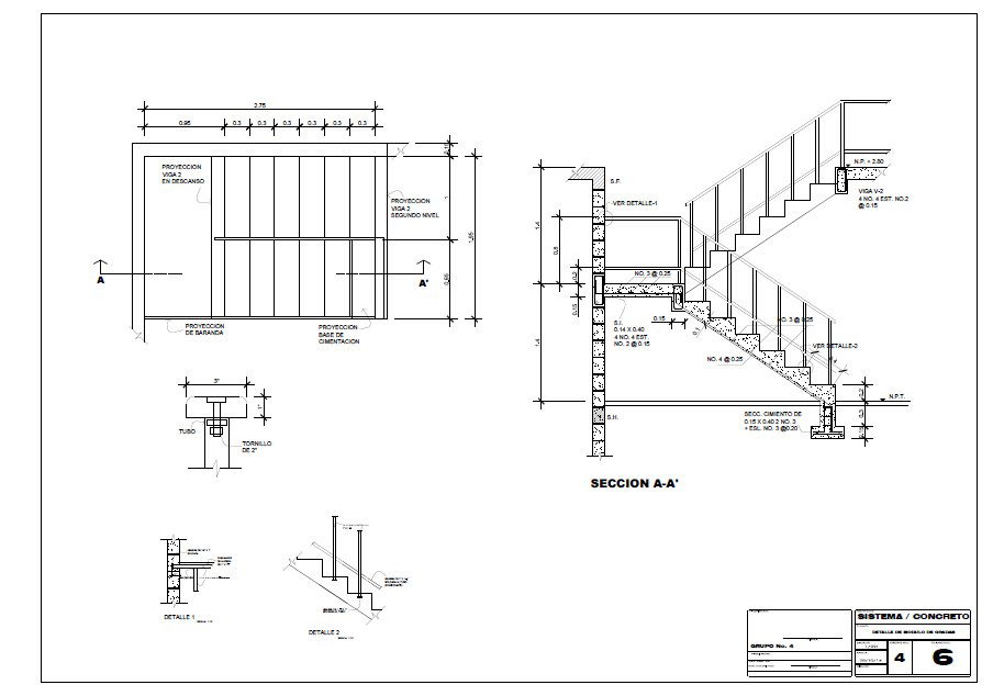
Staircase section and constructive structure details dwg file
Description
Staircase section and constructive structure details that includes a detailed view of house front sectional view with main stairways, stairways sectional view of drawing room to floor, terrace stairways, doors and windows view, vest scenario, ceramic floor, horizontal section, tapizon novoflor corrugated beige, ceramic floor clime color Blanco, foot print ceramic, novice glue, steps details, supportive wooden railing installation, base floor concrete plan, wall construction dimensions view, supportive pillar view and much more of stairways details
Uploaded by:

