Framing and cover plan details of all floors of house dwg file
Description
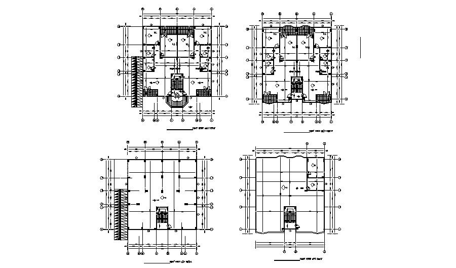
Framing and cover plan details of all floors of house that includes a detailed view of ground floor, first floor etc wood posts, joints, decking, grider pre-engineering, steel pipe column, play joints, existing floor joints, knee wall, steel pipe column, beam schedule details, dimensions details, measures and much more of framing plan details.
Uploaded by:

