Luxuries multi-level hotel floors distribution plan details dwg file
Description
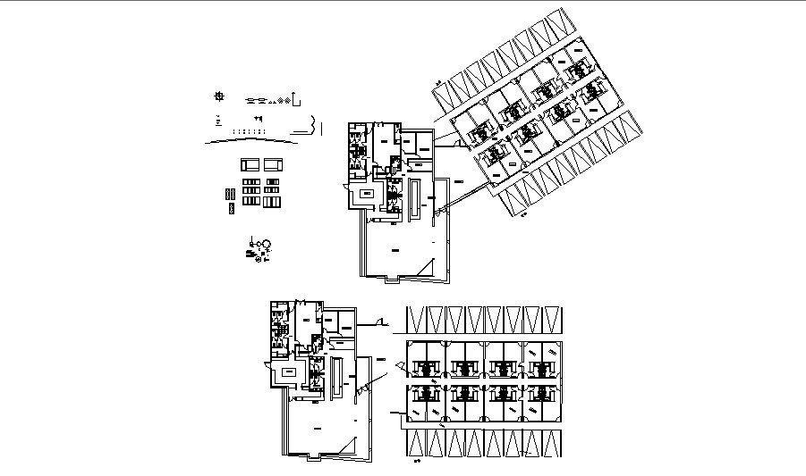
Luxuries multi-level hotel floors distribution plan details that includes a detailed view of parking area, outdoor garden, reception area, waiting lounge, dining area, banquet hall, kitchen, cleaning department, staff room, sanitary facilities, furniture details, interior details, laundry department, spa, gym, back yard garden, service area, bedrooms like honeymoon suits, double bedrooms etc, cleaning departments, cafeteria, bar, terrace, elevators and much more of hotel project.
Uploaded by:

