Luxuries hotel all sided section and distribution plan details dwg file
Description
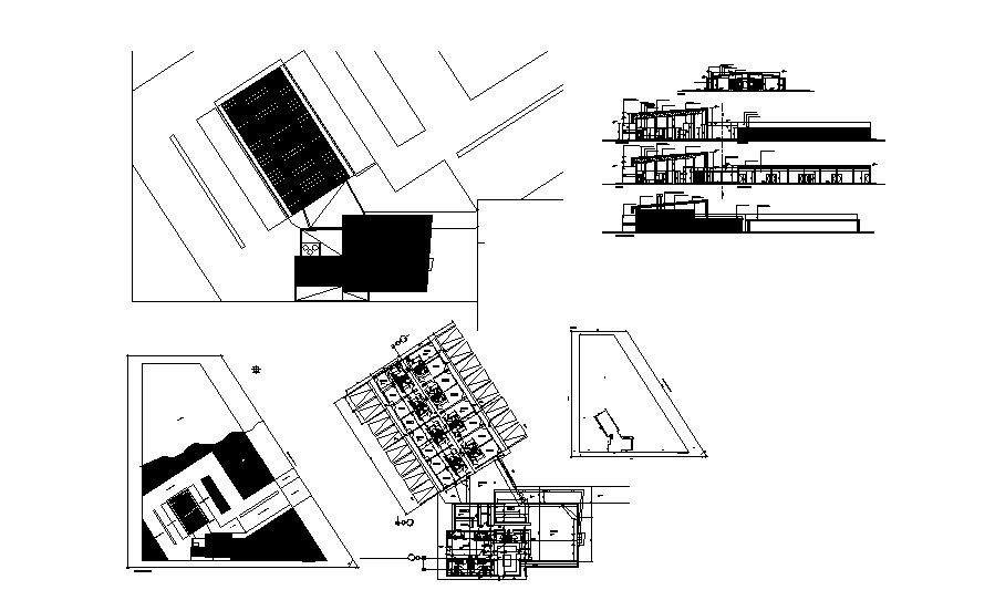
Luxuries hotel all sided section and distribution plan details that includes a detailed view of front and back sectional view, side sectional view, flooring view, doors and windows view, staircase view, balcony view, wall design, dimensions, roof or terrace view, parking area, outdoor garden, reception area, waiting lounge, dining area, banquet hall, kitchen, cleaning department, staff room, sanitary facilities, furniture details, interior details, laundry department, spa, gym, back yard garden, service area, bedrooms like honeymoon suits, double bedrooms etc, cleaning departments, cafeteria, bar, terrace, elevators and much more of hotel project.
Uploaded by:
