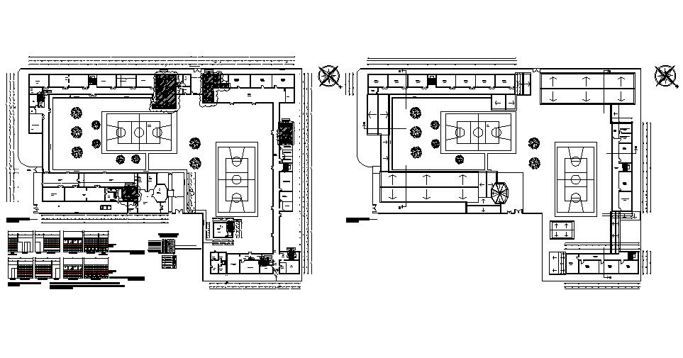
Sports center bathrooms elevation, installation details with distribution plan cad drawing details dwg file
Description
Sports center bathrooms elevation, installation details with distribution plan cad drawing details that includes a detailed view of toilets elevation details, distribution plan details of sports center, toilet sectional details, passage, sanitary equipment installation details, doors and ventilation details, plumbing details, interior details, dimensions details, wall section details and much more of sports ground details.
Uploaded by:

