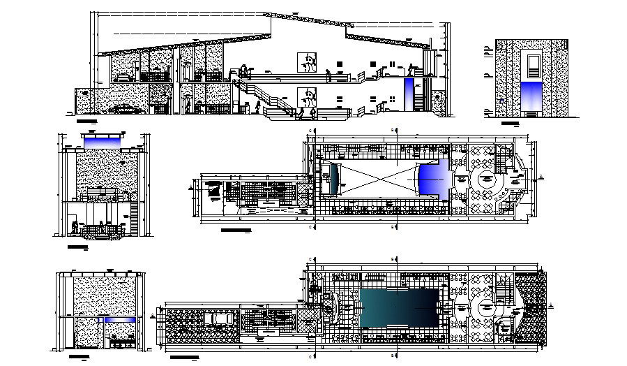
Restaurant with lounge and bar section and floor plan cad drawing details dwg file
Description
Restaurant with lounge and bar section and floor plan cad drawing details that includes a detailed view of flooring view, main entry gate, green view, garden cafeteria, tree and plants view, doors and windows view, staircase view, balcony view, wall design, dimensions, roof or terrace view, car parking view with reception area, waiting lounge, dining area, banquet hall, kitchen, cleaning department, staff room, sanitary facilities, furniture details, interior details and much more of restaurant project.
Uploaded by:

