Chamber structure, construction and auto-cad details dwg file
Description
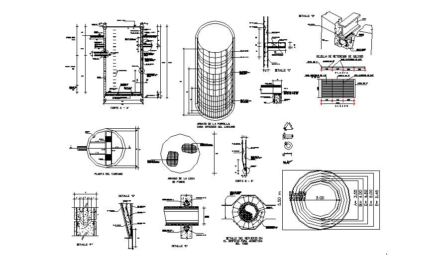
Chamber structure, construction and auto-cad details that includes a detailed view of capacity of load of the ground at level of foundation of shoes, foundation floors, concrete-cement mixture, false floors, cement-concrete mixture (on compacted soil), Surpluses, cement-concrete mix medium stone and much more of chamber details.
Uploaded by:

