Office plan and sanitary installation cad drawing details dwg file
Description
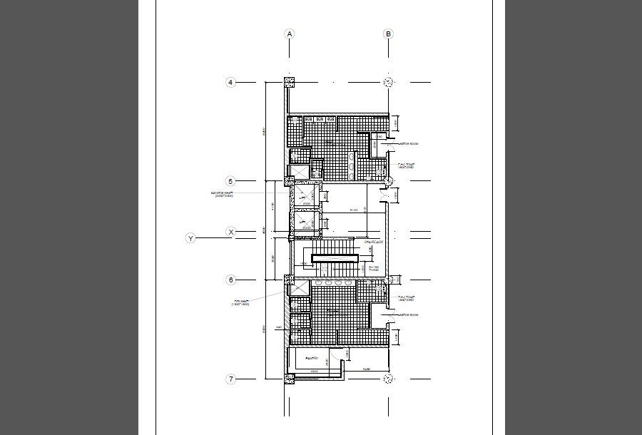
Office plan and sanitary installation cad drawing details that includes a detailed view of reception area, waiting area, cabin, bottom false ceiling, computer lab, bottom of grid ceiling, counselling room and library, conference room, manager cabin, meeting room, cleaning department, departmental office with toilet sectional details, passage, sanitary equipment installation details, doors and ventilation details, plumbing details, interior details, dimensions details, wall section details and much more of office project.
Uploaded by:

