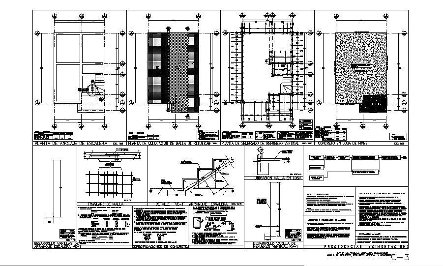
Framing plan, cover plan, staircase and constructive structure details of house dwg file
Description
Framing plan, cover plan, staircase and constructive structure details of house that includes a detailed view of wood posts, joints, decking, grider pre-engineering, steel pipe column, play joints, existing floor joints, knee wall, steel pipe column, beam schedule details, dimensions details, measures with previously linked support, multilayer insulation panel, rubber shock absorber element, galvanized profile for anchorage, acoustic sandwich and much more of structure details.
Uploaded by:

