Toilet section and installation cad drawing details dwg file
Description
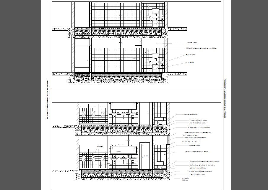
Toilet section and installation cad drawing details that includes a detailed view of toilet sectional details, passage, sanitary equipment installation details, doors and ventilation details, plumbing details, interior details, dimensions details, wall section details and much more of sanitary installation details.
Uploaded by:

