Ground floor framing plan details of office building dwg file
Description
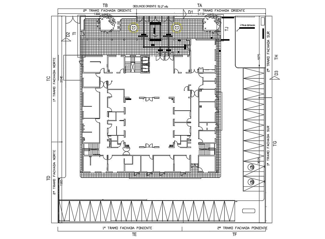
Ground floor framing plan details of office building that includes a detailed view of indoor doors and windows, staircase view, wood posts, joints, decking, grider pre-engineering, steel pipe column, play joints, existing floor joints, knee wall, steel pipe column, beam schedule details, dimensions details, measures and much more of framing plan details.
Uploaded by:

