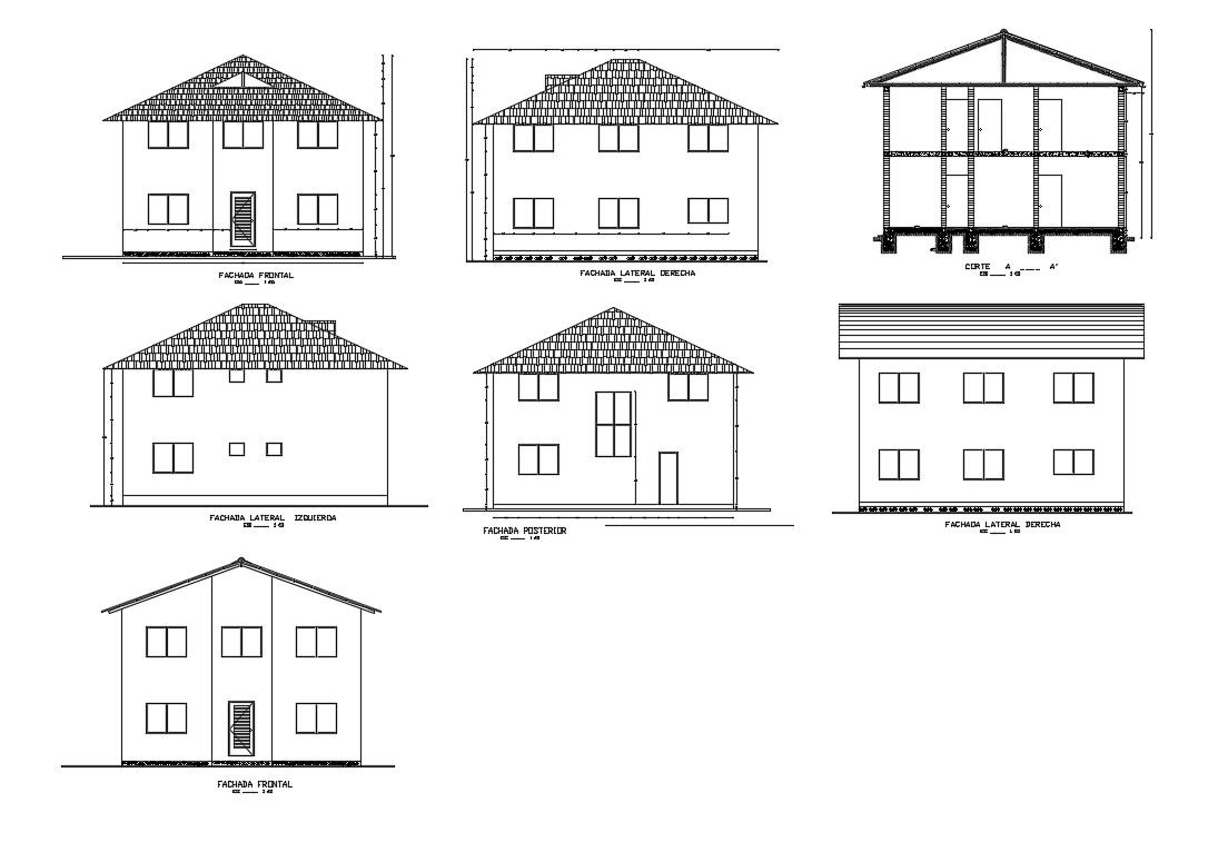
One family small house elevation and section details dwg file
Description
One family small house elevation and section details that includes a detailed view of flooring view, doors and windows view, staircase view, balcony view, wall design, dimensions, roof or terrace view and much more of house details.
Uploaded by:

