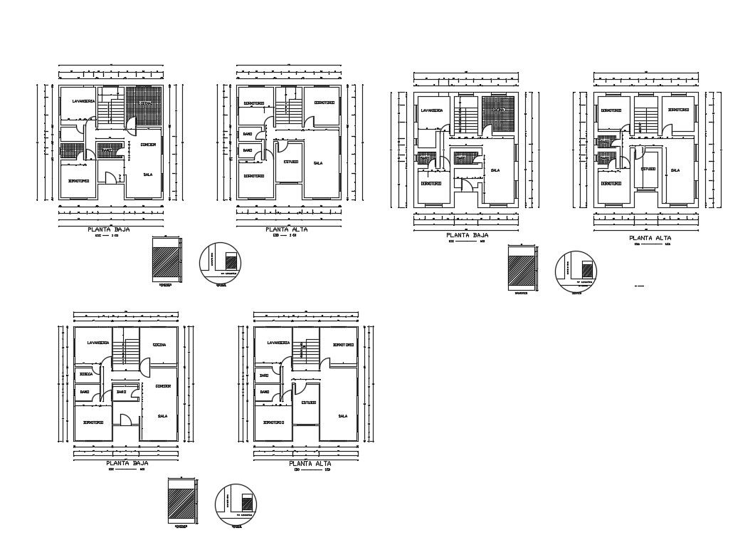
Floor plan details of two-level one family house dwg file
Description
Floor plan details of two-level one family house that includes a detailed view of ground floor, first floor and terrace with main entry gate, mini garden, car parking view, main entry house door, drawing room, living room, family hall, kitchen, dining area, indoor staircases, laundry area, balcony, bedroom, master bedroom, toilets and bathroom, indoor doors, furniture details and much more of house floor plan.
Uploaded by:

