cad drawing Residential Building
Description
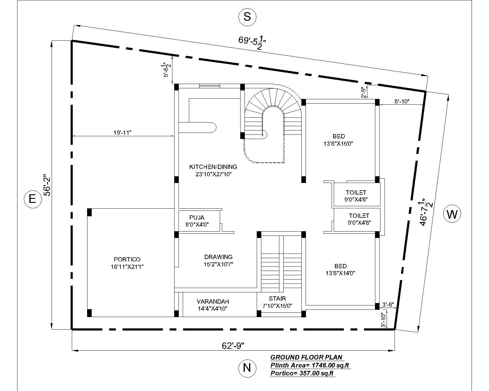
Seeking a solution for maximizing the efficiencies throughout the building plan diagram? How to make a building plan? How indeed does one go about it, ...
A house plan is a set of construction or working drawings (sometimes still called blueprints) that define all the construction specifications of a residential house ...
Uploaded by:
Gopal
Parmanik
