Structure details of typical column and beam cad drawing details dwg file
Description
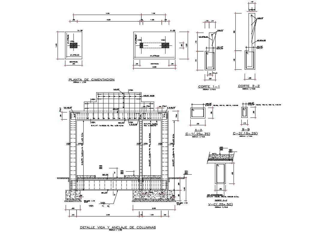
Structure details of typical column and beam cad drawing details that includes a detailed view of typical transverse reinforcement details for flexurals members in seisnic zone, typical splice location for column, details of beam reinforcement passing through column, column junction details, dimensions details, continues slab details, typical beam details, typical solid slab reinforcement details, typical beam foundation details and much more of structure details.
Uploaded by:

