Water tank and gas installation cad drawing details dwg file
Description
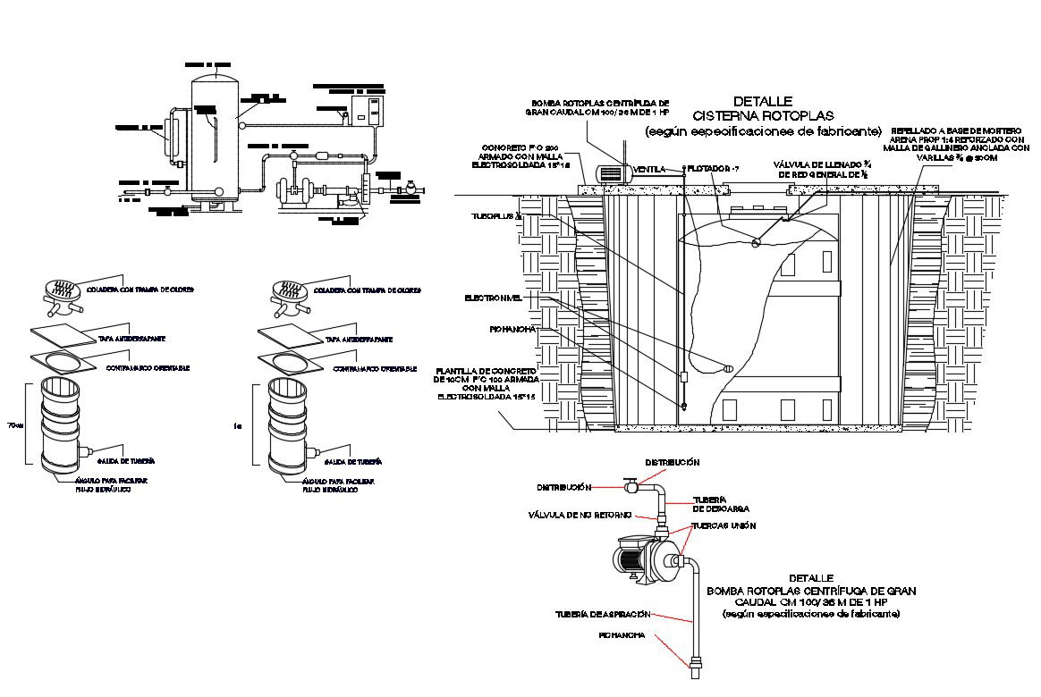
Water tank and gas installation cad drawing details that includes a detailed view of method of fixing water gauge meter for domestic aise withing the cavity of boundry wall, septic tank plan details, elevation and all sided sectional details, dimensions details, manhole plan details, water depth detail, , nickel-plated bronze swan neck wrench, gas socket with bronze piton, Contrazocalo tile, stainless steel laundry, white mayolica, mayolica cut, and much more of structure details.
Uploaded by:

