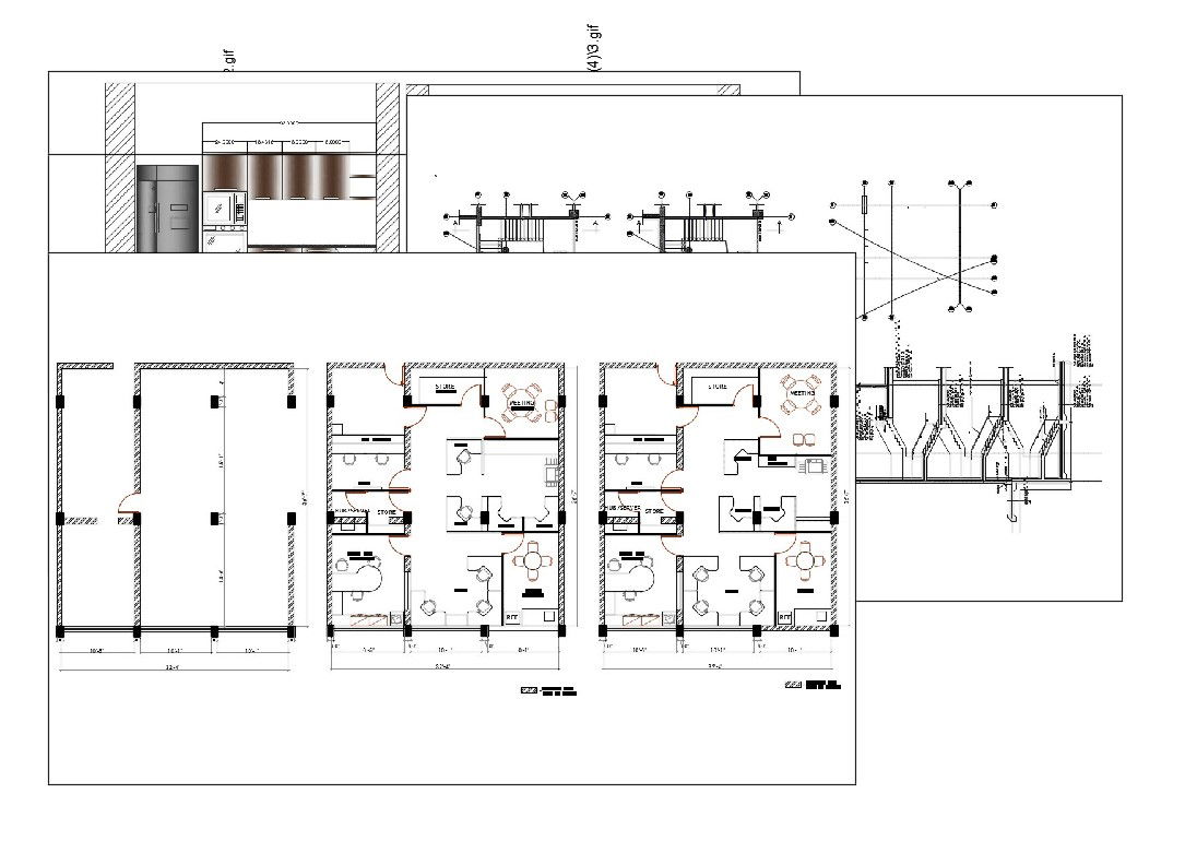
Office floor plan, cover plan, staircase construction and kitchen details dwg file
Description
Office floor plan, cover plan, staircase construction and kitchen details that includes a detailed view of reception area, waiting area, cabin, bottom false ceiling, computer lab, bottom of grid ceiling, counselling room and library, conference room, manager cabin, meeting room with staircase vest scenario, ceramic floor, horizontal section, tapizon novoflor corrugated beige, ceramic floor celima color blanco and much more of office details.
Uploaded by:

