Multiplex theater screen plan cad drawing details dwg file
Description
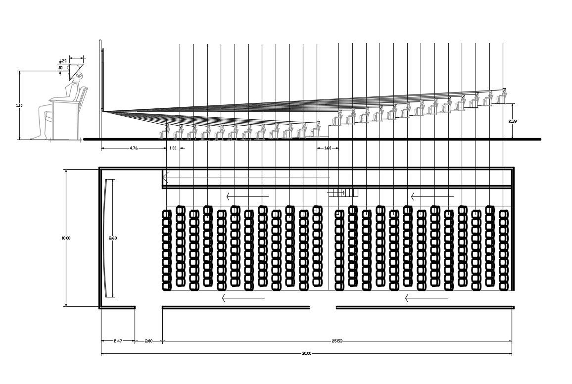
Multiplex theater screen plan cad drawing details that includes a detailed view of theater scree with furniture layout details, dimensions details, people blocks, colors details, size details, type details etc for multi purpose uses for cad projects.
Uploaded by:

