Swimming pool section, plan and cad drawing details dwg file
Description
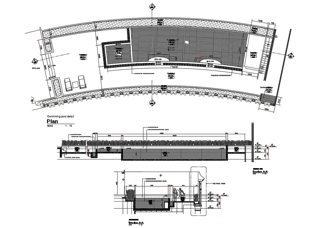
Swimming pool section, plan and cad drawing details that includes a detailed view of marble tile details, furniture details, water area with water depth details, tree and plants, dressing room details, lockers details and much more of swimming pool details.
Uploaded by:

