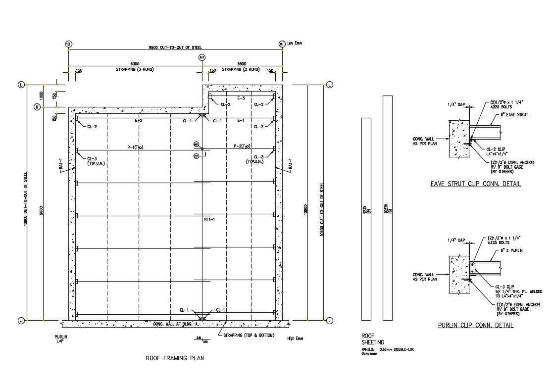
Roof framing plan of house cad structure details dwg file
Description
Roof framing plan of house cad structure details that includes a detailed view of previously linked support, multilayer insulation panel, rubber shock absorber element, galvanized profile for anchorage, acoustic sandwich. (see detail), dimensions details, memory of materials, concrete details, cuts and joints details, reinforcement details, water proofing details and much more of roof structure details.
Uploaded by:

