Multi-familiar residential building all sided elevation and section details dwg file
Description
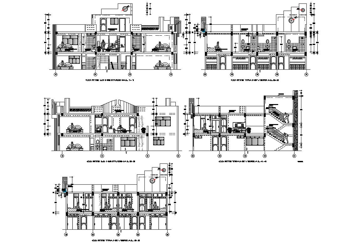
Multi-familiar residential building all sided elevation and section details that includes a detailed view of facade back and side elevations and section details with flooring view, doors and windows view, staircase sectional details, balcony view, wall sections and dimensions details, car parking floor, tree view, wall design and much more of building details.
Uploaded by:

