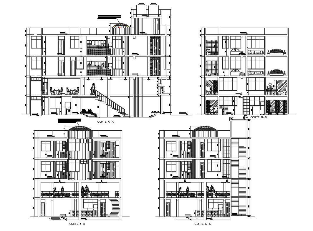
All sided sectional details of residential apartment building dwg file
Description
All sided sectional details of residential apartment building that includes a detailed view of front and back sectional view, side sectional view, flooring view, doors and windows view, staircase view, balcony view, wall design, dimensions, roof or terrace view, car parking view and much more of sectional details.
Uploaded by:
