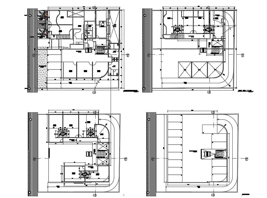
Ground, first, second and terrace floor plan details of mini shopping mall dwg file
Description
Ground, first, second and terrace floor plan details of mini shopping mall that includes a detailed view of ground floor, second floor etc with main entry gate, security check, corporate offices, departmental stores, branded stores, parking floor, loading and transportation trucks parking area, shops and showrooms, elevators, food stores, hotels and restaurants, salon and tattoo shops, party lounge, theater, retail markets, kids game zone, chocolate room, multipurpose stores, crockery stores, beauty stores, sanitary facilities of all floors of male and female, lift details, spa centers, horror house and much more of shopping mall floor details.
Uploaded by:

