Distribution plan and foundation plan details of industrial unit dwg file
Description
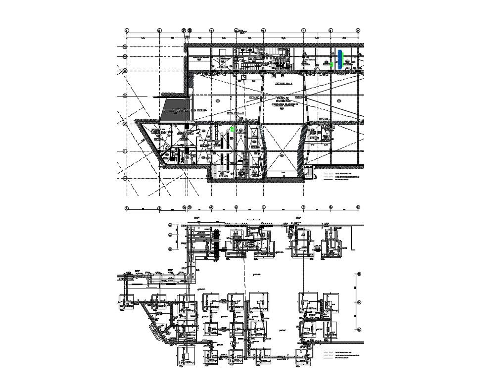
Distribution plan and foundation plan details of industrial unit that includes a detailed view of the foundation, side typical shoe, typical central shoe, columns, foundations, shoes, cistern tank, walls of concr. arm., beams flat, peralted beams, foundation beams, (cement: sand: crushed stone), typical detail of reinforcement and ended of walls of masonry,security check area, garden area, loading area details, parking area, machinery details, processing plant details, administration office details, mess area details and much more of unit details.
Uploaded by:
