Multi-flooring apartment building detailed architecture project dwg file
Description
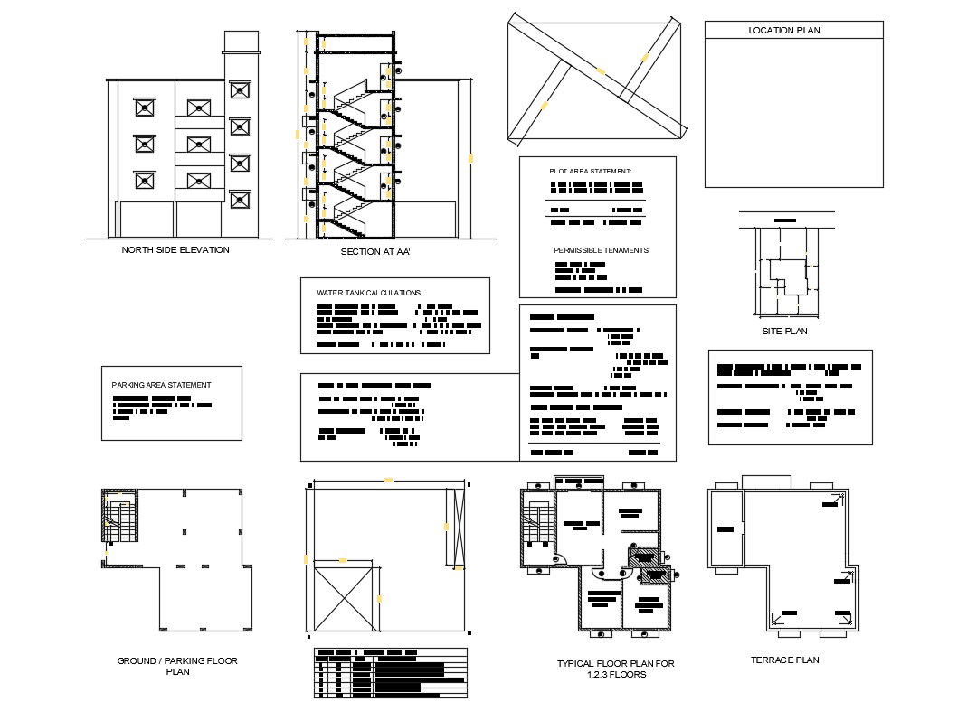
Multi-flooring apartment building detailed architecture project that includes a detailed view of all sided elevations details, all sided sectional details, landscaping and site plan details, basement car parking floor layout plan details, floor plan details with flooring view, doors and windows view, staircase view, balcony view, wall design, dimensions, roof or terrace view, car parking view, ground floor, first floor and terrace with main entry door, mini garden, car parking view, drawing room, living room, family hall, kitchen, dining area, indoor staircases, laundy area, balcony, bedroom, master bedroom, toilets and bathroom, indoor doors, furniture details and much more of apartment project.
Uploaded by:

