Ceiling layout, floor plan scale, furniture and interior details of kitchen dwg file
Description
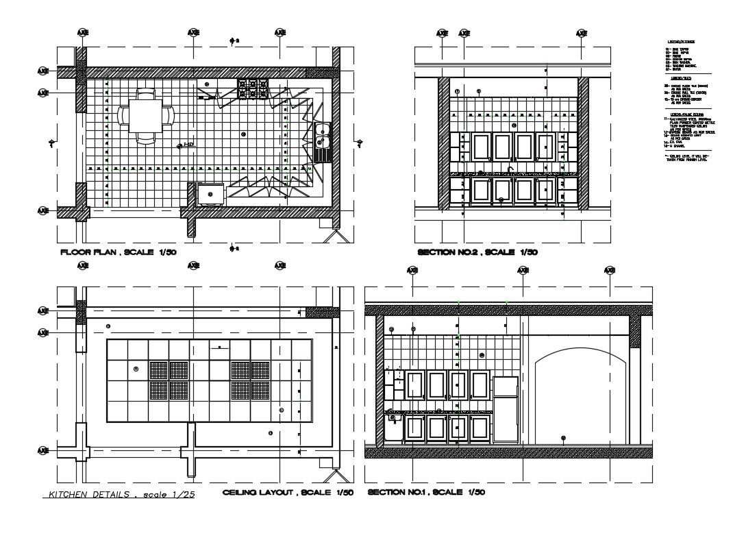
Ceiling layout, floor plan scale, furniture and interior details of kitchen that includes a detailed view of all sided section details of kitchen with wall design, tile design, dimensions details, furniture details, interior details, cooking area, platform area, gas stove, sink and plumbing details, electrical equipment details, chimney and exhaustion, ceiling details and much more of kitchen details.
Uploaded by:

