Staircase constructive section details of house dwg file
Description
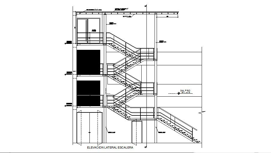
Staircase constructive section details of house that includes a detailed view of house front sectional view with main stairways, stairways sectional view of drawing room to floor, terrace stairways, doors and windows view, vest scenario, ceramic floor, horizontal section, tapizon novoflor corrugated beige, ceramic floor clime color Blanco, foot print ceramic, novice glue, steps details, supportive wooden railing installation, base floor concrete plan, wall construction dimensions view, supportive pillar view and much more of stairways details.
Uploaded by:

