Drainage sewer system section, plan and structure details dwg file
Description
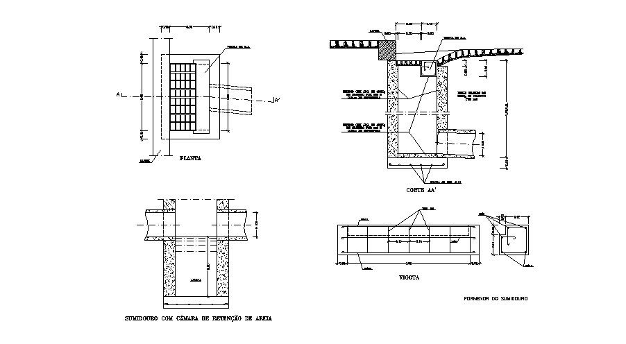
Drainage sewer system section, plan and structure details that includes a detailed view of controller-to-valve details & wiring diagram, pipe and wire trenching, main isolation valve assembly, control valve assembly, air / vacuum relief valve, drain/flush valve, dripper for palms and trees, drip line connection details, pvc to pe drip line take-off, drip irrigation for groundcovers, concrete thrust blocks, dimensions details, material details and much more of drainage details.
Uploaded by:

