AutoCAD File Showing Salon Pedicure Area Layout with Furniture Setup
Description
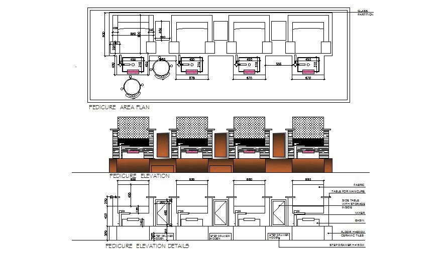
The AutoCAD DWG file provides a detailed design of a salon pedicure area, highlighting furniture placement, equipment arrangement, and circulation space. It is ideal for interior designers, architects, and salon planners to visualize and implement a functional and aesthetic pedicure area. The drawing includes precise measurements and layout details for efficient workflow and client comfort. This CAD file ensures accurate planning and integration of beauty equipment, seating arrangements, and service zones into the salon space.
File Type:
DWG
File Size:
230 KB
Category::
Interior Design
Sub Category::
Salon And Beauty Parlour Interior Design
type:
Gold
Uploaded by:

