Gas installation and plumbing details of house dwg file
Description
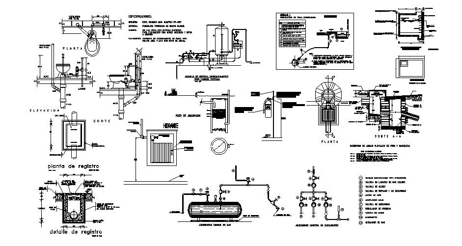
Gas installation and plumbing details of house that includes a detailed view of controller-to-valve details & wiring diagram, pipe and wire trenching, main isolation valve assembly, control valve assembly, air / vacuum relief valve, inst. tap, nickel-plated bronze swan neck wrench, gas socket with bronze piton, Contrazocalo tile, stainless steel laundry, white mayolica, mayolica cut, porcelain filling, rubber protector, stainless steel laundry, for hose connection, simple union and much more of installation details.
File Type:
DWG
File Size:
6.6 MB
Category::
Dwg Cad Blocks
Sub Category::
Autocad Plumbing Fixture Blocks
type:
Gold
Uploaded by:

