Administration office floor plan and water system installation details dwg file
Description
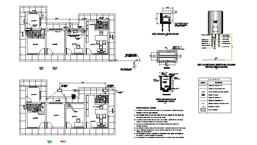
Administration office floor plan and water system installation details that includes a detailed view of plumbing details, gas installation details, reception area, waiting area, cabin, bottom false ceiling, computer lab, bottom of grid ceiling, counselling room and library, conference room, manager cabin, meeting room, cleaning department, departmental office, smoking area, head offices, accountant rooms, pantry, kitchen, dining area, server room, meeting room, pantry and much more of office details.
Uploaded by:

