House plan
Description
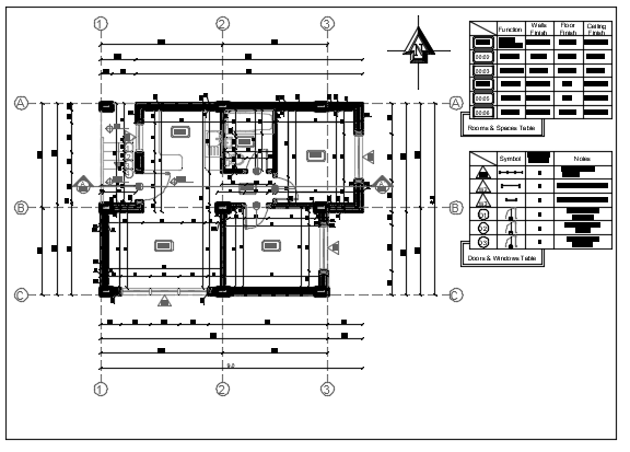
House plan cad drawing details that includes a detailed view of main entry house door , living room, kitchen, bedroom, toilets and bathroom, indoor doors Dimensions, and much more of house details.

Uploaded by:
Arch
Rose

Uploaded by:
Rose