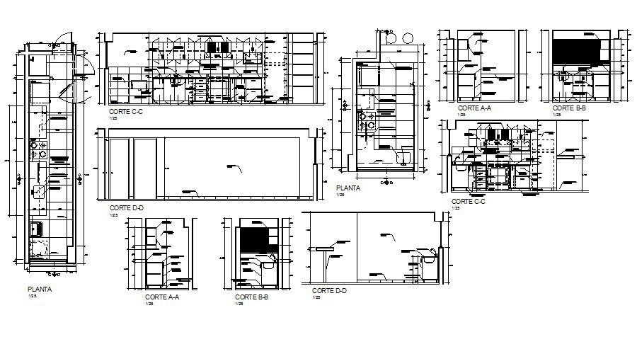
Kitchen of restaurant section, plan and auto-cad details dwg file
Description
Kitchen of restaurant section, plan and auto-cad details that includes a detailed view of all sided section details of kitchen with wall design, tile design, electrical layout plan, structure details, dimensions details, furniture details, interior details, cooking area, platform area, gas stove, sink and plumbing details, electrical equipment details, chimney and exhaustion, ceiling details and much more of kitchen details.
Uploaded by:

