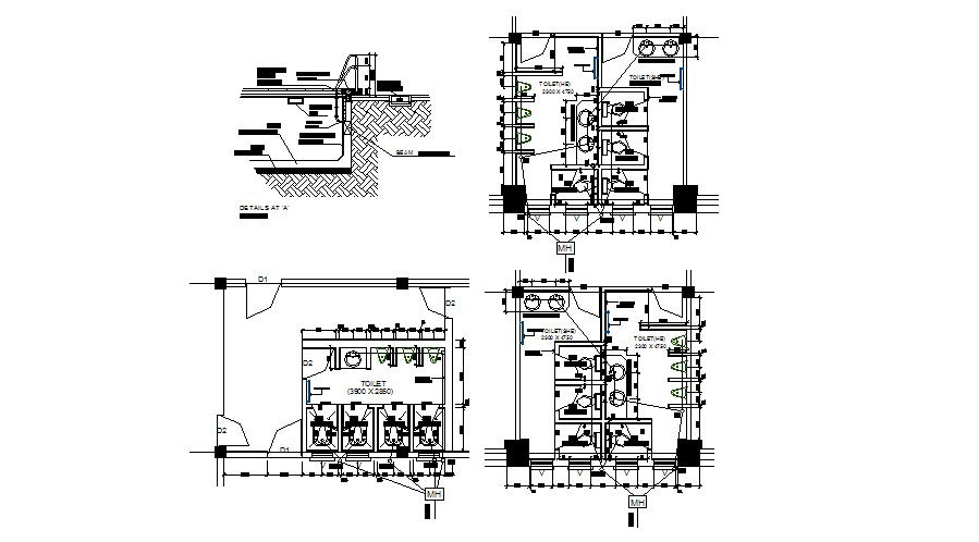
Sanitary facilities plan and installation details of swimming pool dwg file
Description
Sanitary facilities plan and installation details of swimming pool that includes a detailed view of toilet sectional details, passage, sanitary equipment installation details, doors and ventilation details, plumbing details, interior details, dimensions details, wall section details and much more of sanitary installation details.
Uploaded by:

