Recreation center office building section and distribution plan details dwg file
Description
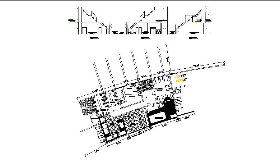
Recreation center office building section and distribution plan details that includes a detailed view of flooring view, doors and windows view, staircase view, balcony view, wall design, dimensions, roof or terrace view, parking area, auditorium hall, garden details, dimensions details and much more of center details.
Uploaded by:

