Office building sanitary section, plan and installation details dwg file
Description
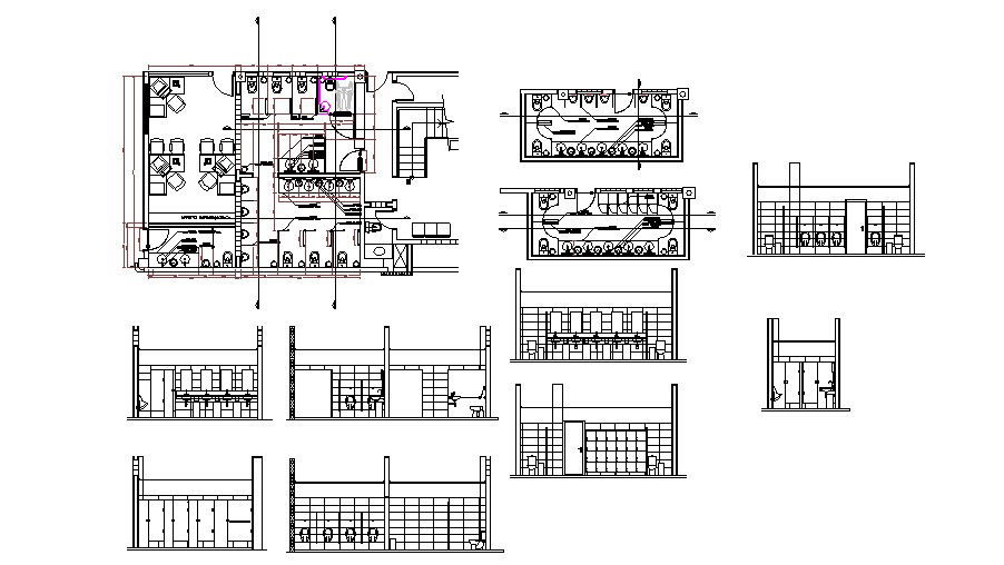
Office building sanitary section, plan and installation details that includes a detailed view of toilet sectional details, passage, sanitary equipment installation details, doors and ventilation details, plumbing details, interior details, dimensions details, wall section details and much more of sanitary installation details.
Uploaded by:
