Public toilets section, plan and sanitary installation details dwg file
Description
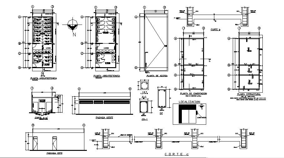
Public toilets section, plan and sanitary installation details that includes a detailed view of toilet sectional details, passage, sanitary equipment installation details, doors and ventilation details, plumbing details, interior details, dimensions details, wall section details and much more of sanitary installation details.
Uploaded by:

