Florida house room addition detailed architecture project dwg file
Description
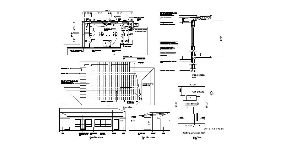
Florida house room addition detailed architecture project that includes a detailed view of rear and left elevation details, site plan details, footing details, section details, floor plan details, dimensions details, floor plan details, wall section details, construction details, structure details and much more of house details.
Uploaded by:

