Constructive section and doors and windows installation details of building dwg file
Description
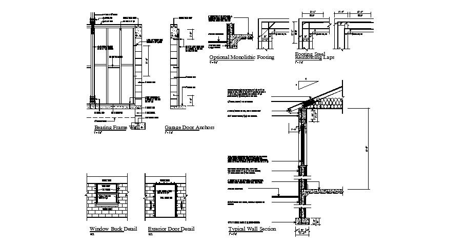
Constructive section and doors and windows installation details of building that includes a detailed view of flooring view, wall construction, memory of materials, footings details, column view, beam construction, covers closure type, soil burried wall closure , exterior solera, holes, interior partition, granite veneer of the country with steel supports, door elevation details, wires and fences, galvanized mesh, clamps galv, aluminum couplings, amarres galv, rh place 1 into the spot and 2 in the corners, pe as reinforcement in straight sections, technical specifications, model selection, symbology details, dimensions details, joints details and much more of structure details.
Uploaded by:

