Bar with restaurant distribution plan cad drawing details dwg file
Description
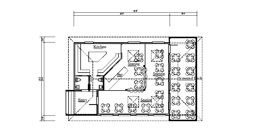
Bar with restaurant distribution plan cad drawing details that includes a detailed view of seating area, entry, kitchen, bar, toilets, dimensions details and much more of bar details.
Uploaded by:
