Luxuries club house distribution layout plan cad drawing details dwg file
Description
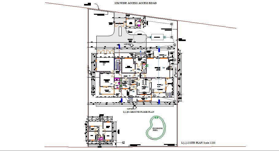
Luxuries club house distribution layout plan cad drawing details that includes a detailed view of main entry house door, drawing room, living room, family hall, kitchen, dining area, indoor staircases, laundry area, balcony, bedroom, master bedroom, toilets and bathroom, indoor doors, furniture details, swimming pool, gym, game center and much more of club house project.
Uploaded by:

