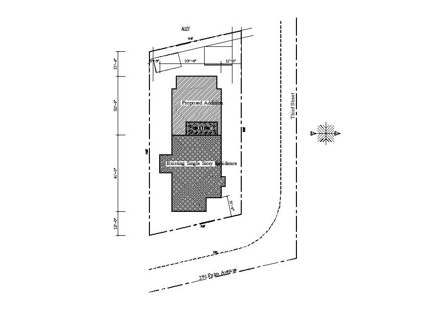
Single story residence site plan cad drawing details dwg file
Description
Single story residence site plan cad drawing details that includes a detailed view of wide entry gate, indoor wide roads, plot or house numbers, total area details, common plot, road, house plot, gurukul space, children park space, senior citizen area, sample house, club house, running track and much more of site plan details.
Uploaded by:

